2 Hampton Park Road
Southampton, NY 11968
Price: $11,995,000
8 Bedrooms, 9 Full Baths, 3 Half Baths
12,000 Sq. Ft.
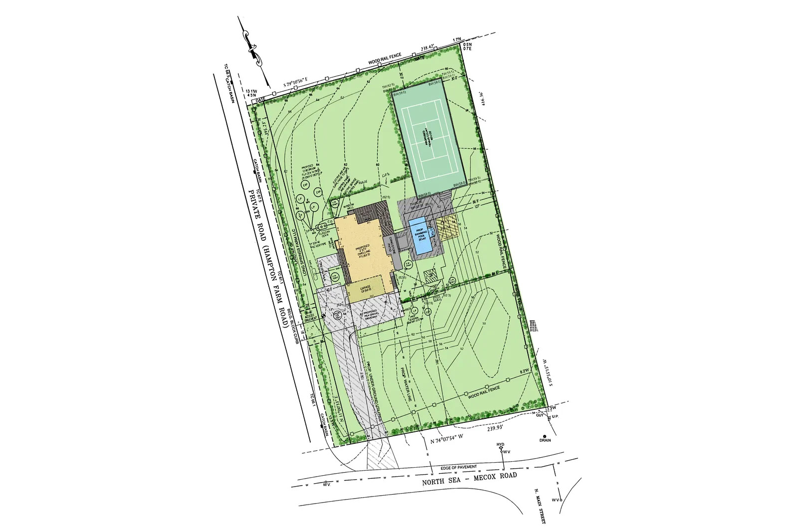
Move right in for summer 2026! Just completed and designer furnished- Stunning Southampton new construction with bright and open skies beam natural light across every inch of the expansive 2.3 acre property with large pool, pool house, and tennis. Inside and out, everything is elevated with premium materials and artisan craftsmanship in the design and construction to create a portrait of chic contemporary living in the Hamptons. Arrive to a grand, double-height entry foyer with clear sightlines throughout the home and grounds beyond. The great room is anchored by gorgeous wood-burning fireplace and encompasses a plush living room and inviting sitting room, each with patio egress. This is an entertainer’s dream home, equipped with two dining rooms and a bright eat-in kitchen with an expansive center island, custom cabinets, and premium appliances. Accessed by oversized French doors throughout the first floor, always prioritizing indoor-outdoor lifestyle and filling the interior spaces with brilliant light and unobscured views of the resort-like grounds. Upstairs, the primary suite is its own luxurious escape with cathedral ceilings, large home office with wet bar, spa-like bath with dual vanity, a freestanding soaking tub and an enormous marble shower with bench seating, and a boutique walk-in closet – all with private balcony overlooking the expansive property. Three additional ensuite guest rooms and a convenient laundry room complete this level. Five additional guest rooms, including a first-floor jr. primary are located on each level and ready to accommodate guests and loved ones. Accessed by glass-lined staircase, the fully finished lower level is the peak of functional luxury with tall ceilings, full sauna & steam rooms, wine room, a mirrored gym, home theater with wet bar, and versatile recreation/living space. The expansive pool is warmed by the sun with all-day light, overlooked by a fully loaded outdoor kitchen, covered dining patio, and full outdoor living room. A bright and beachy pool house adds privacy and peaceful gathering space as well as a full bathroom and room to store your pool toys. Past the pool and surrounding porcelain patio with sun lounge, your own sunken tennis courts. Beyond, an expansive, fully cleared lawn and grounds are idea for lawn games and entertaining – all fully fenced and lined with privacy-affording perimeter hedges. Your forever home in the Hamptons is equipped with every amenity needed to enjoy effortless luxury living year-round, including laundry on each level, attached 3-car garage, and elevator. Enviable location in the heart of the Hamptons close to equestrian, vineyards, and convenient access to Water Mill and Southampton Village, plus world-famous ocean and bay beaches all within reach.
Amenities
- Deck
- Finished Lower Level
- Gym
- New Construction
- Pool
- Porch
- Media Room / Home Theater
- Pool House
- Main Level Primary
- Tennis
- Room for Pool
Property Details
- 8 Total Bedrooms
- 9 Full Baths
- 3 Half Baths
- 12,000 Interior Sq. Ft.
- 2.3 Acres
- Built in 2025
Location
| Status | Active |
| Year Built | 2025 |
| Type | Residential |
MLS Type | House (Attached) |
| Lot Size | 2.3 AC |
| Stories | 2 |
| Taxes | – |
| Condo/Co-op Fees | – |
| HOA Fees | – |
| County | Suffolk County |
Listing Agent

Licensed Associate Real Estate Broker
Cell: 631.478.8385




















































